Neuer Anfang
Hier beginnt dein neues Leben – sicher, geschützt, geborgen
Lorem ipsum
Wir bieten dir und deinen Kindern ein sicheres Zuhause, Unterstützung und Hoffnung. Du bist nicht allein – wir sind für dich da.




Du bist stärker, als du denkst – und wir sind an deiner Seite.
Appartement 1 - Erdgeschoss
Ein sicherer Ort zum Ankommen und Durchatmen. Unsere modernen, voll ausgestatteten Appartements bieten dir und deinen Kindern ein geschütztes Zuhause, in dem ihr euch wohlfühlen könnt. Helle Räume, eine praktische Ausstattung und eine ruhige Umgebung schaffen die ideale Grundlage für einen neuen Anfang. Hier kannst du Kraft schöpfen und Schritt für Schritt in deine Zukunft starten.
Appartement 2 - Erdgeschoss
Dieses geräumige Appartement bietet dir und deinen Kindern nicht nur ein sicheres Dach über dem Kopf, sondern auch den Komfort, den ihr für einen Neuanfang braucht. Mit einer großzügigen Wohnfläche, heller Atmosphäre und einer eigenen Terrasse kannst du hier zur Ruhe kommen und neue Perspektiven entwickeln. Ein Ort, an dem du wieder durchatmen kannst.
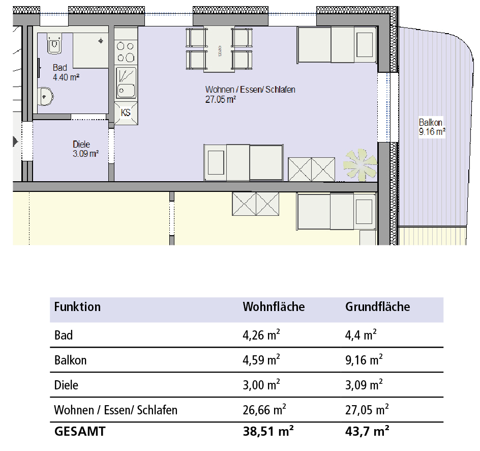
Appartement 3 - Erdgeschoss
Dieses liebevoll gestaltete Appartement bietet dir nicht nur einen sicheren Rückzugsort, sondern auch die Möglichkeit, neue Kraft zu schöpfen. Die helle Wohnfläche, die praktische Küche und die großzügige Terrasse schaffen ein angenehmes Wohngefühl. Hier kannst du dich sicher fühlen, durchatmen und Schritt für Schritt deinen neuen Weg gehen.
Appartement 4 - Obergeschoss
Dieses helle und geräumige Appartement im Obergeschoss bietet dir einen geschützten Raum, in dem du zur Ruhe kommen kannst. Der gemütliche Wohnbereich, die moderne Küche und der private Balkon schaffen eine angenehme Atmosphäre, um neue Kraft zu schöpfen. Hier findest du die Sicherheit und Geborgenheit, die du brauchst, um dein Leben neu zu gestalten.
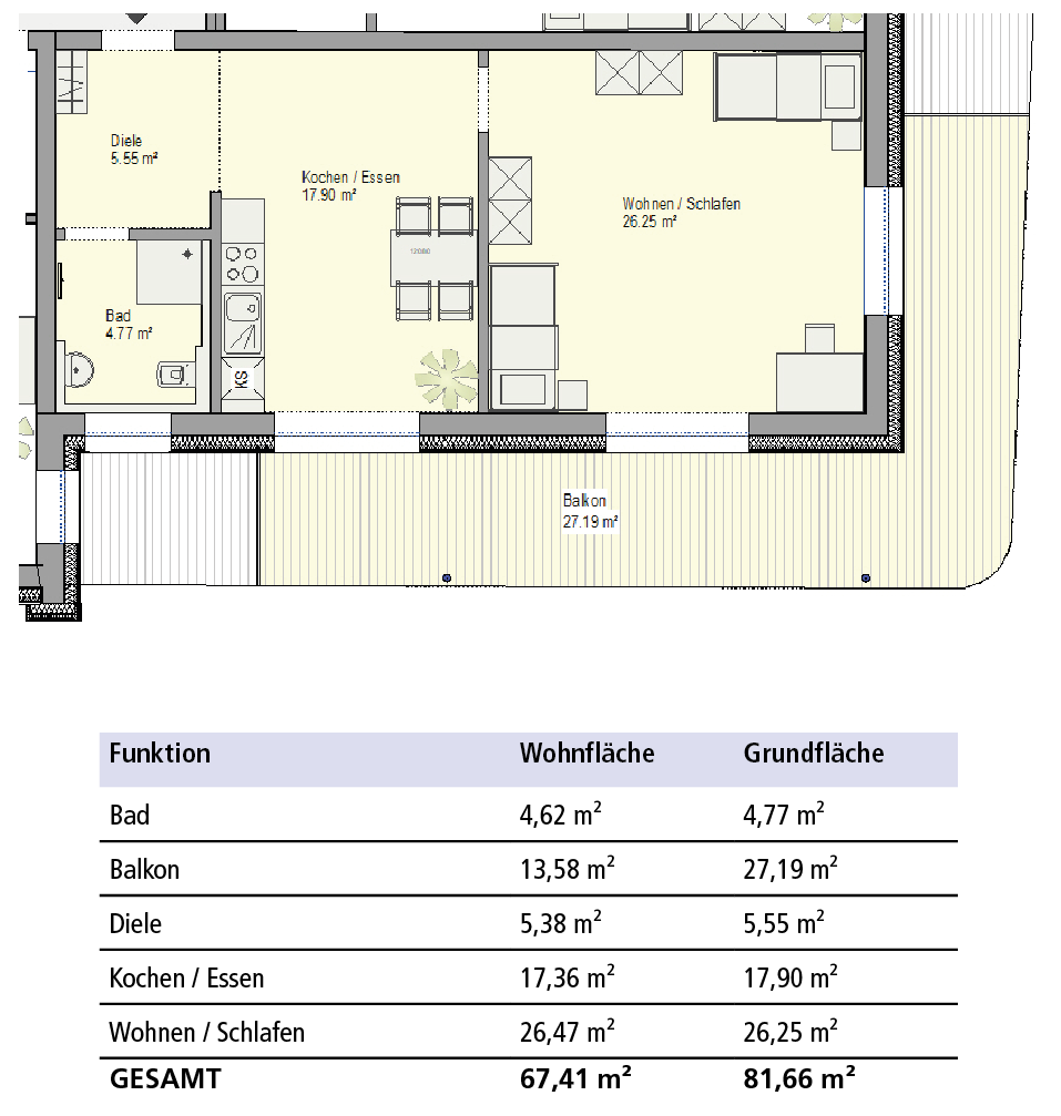
Appartement 5 - Obergeschoss
Dieses großzügige Appartement mit einem weitläufigen Balkon bietet dir nicht nur Schutz und Sicherheit, sondern auch einen Rückzugsort mit Weitblick. Die helle und offene Raumgestaltung schafft eine angenehme Atmosphäre zum Ankommen, Wohlfühlen und Durchatmen. Hier kannst du zur Ruhe kommen und deine Zukunft in einem geschützten Umfeld neu gestalten.
Appartement 6 - Obergeschoss
Dieses helle Appartement bietet dir nicht nur einen sicheren Rückzugsort, sondern auch die Freiheit, deine Zukunft neu zu gestalten. Mit einem großzügigen Wohnbereich, einer modernen Küche und einem privaten Balkon kannst du hier zur Ruhe kommen und neue Perspektiven entwickeln. Ein Zuhause, das dir Geborgenheit und Sicherheit schenkt.
































